
一种轻质房屋建筑墙板
注:上述费用仅包含专利权利转让费用,不包含专利年费或因年费未及时缴纳产生的滞纳金、恢复费。专利年费是专利权人依照专利法规定,自被授予专利权的当年开始,在专利权有效期内逐年应向专利局缴纳的费用。由于出售的专利类型、专利年限以及专利权人是否满足国家费用减缓的条件均会影响具体年费金额,需根据购买专利的实际情况进行缴纳。缴纳年费以及滞纳金、恢复费需单独和平台顾问确认且不属于下单后加价行为,故无法适用保障。
专利申请号:
CN202321730569.4
专利类型:
实用新型
技术分类:
-
专利有效期:
2033-07-04
友情提示:该资源未保障“真” “价”,付款前请核实资源真实性与价格。
在线咨询
增值服务:

- 该资源已获得保障和赔付:
- 转让不成功退款退
- 转让超期必赔时
- 该资源未获得保障和赔付:
- 资源不保真必赔真
- 下单后加价必赔价
专利信息
专利名称:一种轻质房屋建筑墙板
商品编号:6523037
复制
申请日期:2023-07-04
公开/公告号:CN220167279U
授权公告日/公开日:2023-12-12
申请/专利权人:
沧州***公司
发明/设计人:
张**
主分类号:-
IPC分类号:E04C2/284;E04C2/30;E04B2/00;E04B1/38;E04B1/61;E04B1/66;E04B1/80;E04B1/343
说明书摘要免费下载摘要
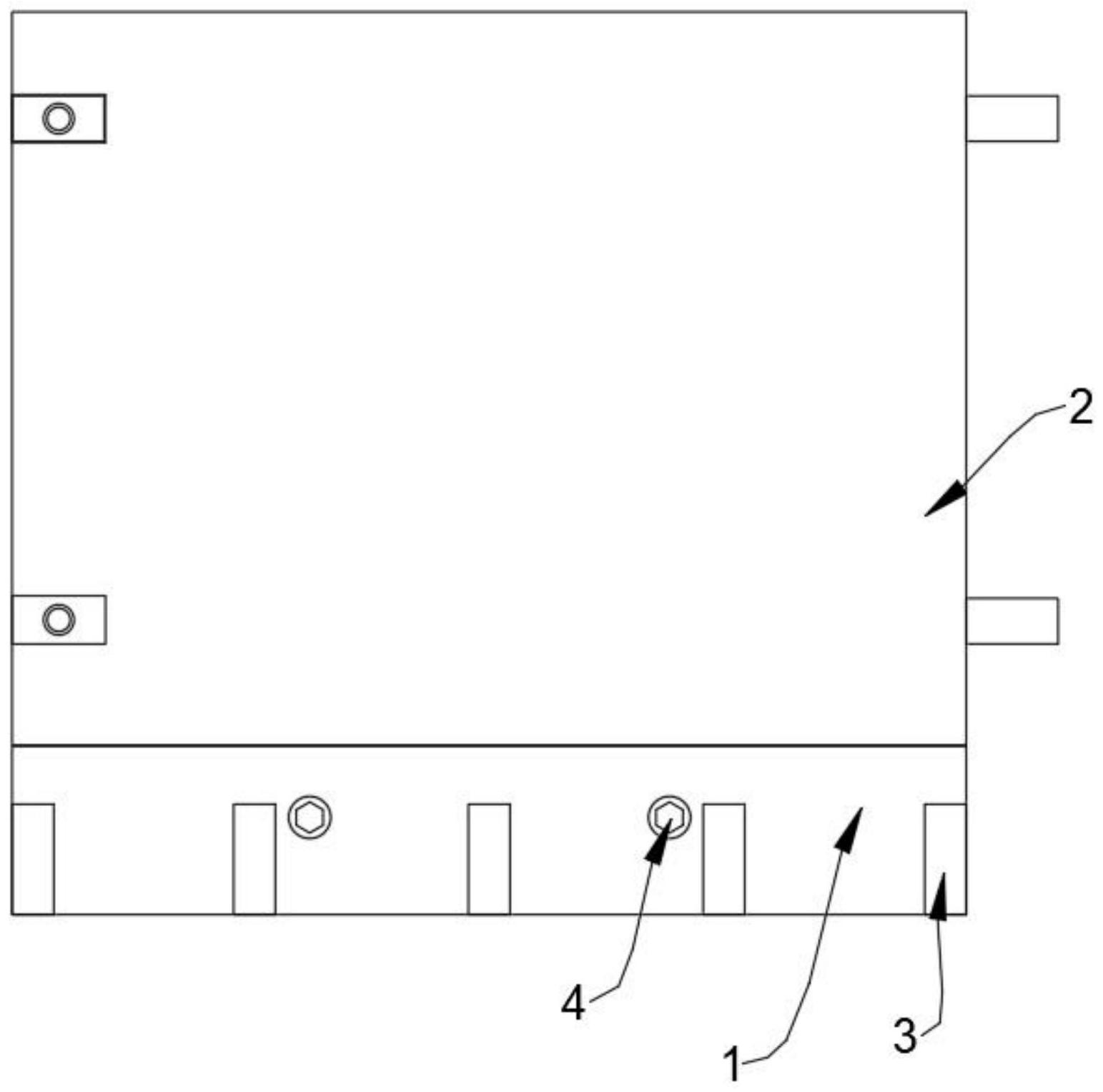
本申请公开一种轻质房屋建筑墙板,属于建筑墙板技术领域,其包括底座,底座的顶端设置有墙板主体,墙板主体的底端固定连接有卡板,底座的顶端开设有供卡板卡接的卡槽,底座的正表面设置有固定螺栓,底座与卡板的中部均贯穿开设有供固定螺栓螺纹连接的螺纹孔,且两组螺纹孔的位置相对应,卡板的底端开设有滚动槽,滚动槽的内部滚动连接有滚珠,滚珠的底端穿过滚动槽的槽口并与卡槽相对应,卡槽的内部开设有供滚珠卡接的卡孔;本申请利用设置的墙板主体来对卡板进行连接,同时利用底座上开设的卡槽来便于卡板的卡入,同时利用设置的螺纹孔来与固定螺栓进行连接,进一步地将卡板固定在底座中,进一步地加强了卡板与底座之间的牢固程度。
转让流程

提出需求
提出您的专利需求
顾问一对一服务
顾问一对一服务

顾问匹配
顾问匹配资源库
快速确定优质专利
快速确定优质专利

签订合同
签订专利转让协议
成功付款
成功付款

递交申请
准备转让资料
国知局审查办理
国知局审查办理

领取证书
获得专利权,投入使用
所需资料
买方提供资料

个人身份证

公司或个体营业执照
购买后获得证书

专利证书

专利登记簿副本

手续合格通知书
平台优势
常见问题
购买专利需要什么资料?
一种轻质房屋建筑墙板专利,专利类型:实用新型,技术分类是:-,购买一种轻质房屋建筑墙板专利,需要申请人和发明人的基础信息,还需提供一种轻质房屋建筑墙板专利的详细信息。
专利交易转让时间是多久?
专利权转让期限一般是2~6个月的时间获得专利转让通知书,在转让之前双方需要签订转让合同即可,一种轻质房屋建筑墙板专利具体的操作步骤,可以联系八戒数字交易的客服一对一服务。
相似专利
换一换








